oa Bandar Abbas and Bandar Lengeh Iran
الوصول إلى النص الكامل
Chapter
- المؤلفون: Prof. Spiro N. Pollalis and Nader Ardalan
- المصدر: Gulf Sustainable Urbanism – Past, Volume II , الصفحات 6-109
- تاريخ النشر: ديسمبر ٢٠١٨
- DOI: https://doi.org/10.5339/GSU.9789927118968_1
Full text loading...
/deliver/fulltext/9789927118968/9789927118968-ch07.html?itemId=/content/chapter/9789927118968.b_9789927118968-ch07&mimeType=html&fmt=ahah
Bandar Abbas and Bandar Lengeh Iran
Hamad bin Khalifa University Press (HBKU Press) , 6 (٢٠١٨); https://doi.org/10.5339/GSU.9789927118968_1
/content/chapter/9789927118968.b_9789927118968-ch07
/content/chapter/9789927118968.b_9789927118968-ch07
عرض:
الأشكال
الأشكال
/content/figure/9789927118968.b_9789927118968-ch07.b-9789927118968_007-unfig1
Untitled
9789927118968/b-9789927118968_007-unfig1_thmb.gif
9789927118968/b-9789927118968_007-unfig1.gif
/content/figure/9789927118968.b_9789927118968-ch07.b-9789927118968_007-unfig2
Untitled
Bandar Abbas 2012
-
▸
Area: 56.9 km2 approx.
▸
Population: 367,508
▸
Density: 6,459/km2
9789927118968/b-9789927118968_007-unfig2_thmb.gif
9789927118968/b-9789927118968_007-unfig2.gif
Bandar Abbas 2012
-
▸
Area: 56.9 km2 approx.
▸
Population: 367,508
▸
Density: 6,459/km2
/content/figure/9789927118968.b_9789927118968-ch07.b-9789927118968_007-unfig3
Untitled
Bandar Lengeh 2012
-
▸
Area: 8.3 km2 approx.
▸
Population: 25,303
▸
Density: 3,049/km2
9789927118968/b-9789927118968_007-unfig3_thmb.gif
9789927118968/b-9789927118968_007-unfig3.gif
Bandar Lengeh 2012
-
▸
Area: 8.3 km2 approx.
▸
Population: 25,303
▸
Density: 3,049/km2
/content/figure/9789927118968.b_9789927118968-ch07.b-9789927118968_007-unfig4
Untitled
Bandar Abbas 1947
-
▸
Area: 3.3 km2
▸
Population: 15,000 approx.
▸
Density: 4,545/km2
9789927118968/b-9789927118968_007-unfig4_thmb.gif
9789927118968/b-9789927118968_007-unfig4.gif
Bandar Abbas 1947
-
▸
Area: 3.3 km2
▸
Population: 15,000 approx.
▸
Density: 4,545/km2
/content/figure/9789927118968.b_9789927118968-ch07.b-9789927118968_007-unfig5
Untitled
Bandar Lengeh 1950
-
▸
Area: 3.2 km2
▸
Population: 5,000 approx.
▸
Density: 1,563/km2
9789927118968/b-9789927118968_007-unfig5_thmb.gif
9789927118968/b-9789927118968_007-unfig5.gif
Bandar Lengeh 1950
-
▸
Area: 3.2 km2
▸
Population: 5,000 approx.
▸
Density: 1,563/km2
/content/figure/9789927118968.b_9789927118968-ch07.b-9789927118968_007-fig7.1
FIGURE 7.1
Aerial image of Bandar Lengeh and Bandar Abbas
9789927118968/b-9789927118968_007-fig1_thmb.gif
9789927118968/b-9789927118968_007-fig1.gif
FIGURE 7.1
Aerial image of Bandar Lengeh and Bandar Abbas
/content/figure/9789927118968.b_9789927118968-ch07.b-9789927118968_007-fig7.2
FIGURE 7.2
Temperature and humidity variation of Bandar Abbas, 1965–1980
9789927118968/b-9789927118968_007-fig2_thmb.gif
9789927118968/b-9789927118968_007-fig2.gif
FIGURE 7.2
Temperature and humidity variation of Bandar Abbas, 1965–1980
/content/figure/9789927118968.b_9789927118968-ch07.b-9789927118968_007-fig7.3
FIGURE 7.3
Outdoor dry bulb temperature for Bandar Abbas
Each column represents one day, each cell represents one hour
9789927118968/b-9789927118968_007-fig3_thmb.gif
9789927118968/b-9789927118968_007-fig3.gif
FIGURE 7.3
Outdoor dry bulb temperature for Bandar Abbas
Each column represents one day, each cell represents one hour
/content/figure/9789927118968.b_9789927118968-ch07.b-9789927118968_007-fig7.4
FIGURE 7.4
Annual heat index for Bandar Abbas
9789927118968/b-9789927118968_007-fig4_thmb.gif
9789927118968/b-9789927118968_007-fig4.gif
FIGURE 7.4
Annual heat index for Bandar Abbas
/content/figure/9789927118968.b_9789927118968-ch07.b-9789927118968_007-fig7.5
FIGURE 7.5
Wind variations for Bandar Abbas, 1965–1980
9789927118968/b-9789927118968_007-fig5_thmb.gif
9789927118968/b-9789927118968_007-fig5.gif
FIGURE 7.5
Wind variations for Bandar Abbas, 1965–1980
/content/figure/9789927118968.b_9789927118968-ch07.b-9789927118968_007-fig7.6
FIGURE 7.6
Temperature and humidity variation of Bandar Lengeh, 1973–1980
9789927118968/b-9789927118968_007-fig6_thmb.gif
9789927118968/b-9789927118968_007-fig6.gif
FIGURE 7.6
Temperature and humidity variation of Bandar Lengeh, 1973–1980
/content/figure/9789927118968.b_9789927118968-ch07.b-9789927118968_007-fig7.7
FIGURE 7.7
Outdoor dry bulb temperature for Bandar Lengeh
Each column represents one day, each cell represents one hour
9789927118968/b-9789927118968_007-fig7_thmb.gif
9789927118968/b-9789927118968_007-fig7.gif
FIGURE 7.7
Outdoor dry bulb temperature for Bandar Lengeh
Each column represents one day, each cell represents one hour
/content/figure/9789927118968.b_9789927118968-ch07.b-9789927118968_007-fig7.8
FIGURE 7.8
Annual heat index for Bandar Lengeh
9789927118968/b-9789927118968_007-fig8_thmb.gif
9789927118968/b-9789927118968_007-fig8.gif
FIGURE 7.8
Annual heat index for Bandar Lengeh
/content/figure/9789927118968.b_9789927118968-ch07.b-9789927118968_007-fig7.9
FIGURE 7.9
Wind variations for Bandar Lengeh, 1973–1980
9789927118968/b-9789927118968_007-fig9_thmb.gif
9789927118968/b-9789927118968_007-fig9.gif
FIGURE 7.9
Wind variations for Bandar Lengeh, 1973–1980
/content/figure/9789927118968.b_9789927118968-ch07.b-9789927118968_007-img7.1
IMAGE 7.1
Aerial photograph of Bandar Abbas, 1947
9789927118968/b-9789927118968_007-img1_thmb.gif
9789927118968/b-9789927118968_007-img1.gif
IMAGE 7.1
Aerial photograph of Bandar Abbas, 1947
/content/figure/9789927118968.b_9789927118968-ch07.b-9789927118968_007-img7.2
IMAGE 7.2
Aerial photograph of Bandar Lengeh, 1947
9789927118968/b-9789927118968_007-img2_thmb.gif
9789927118968/b-9789927118968_007-img2.gif
IMAGE 7.2
Aerial photograph of Bandar Lengeh, 1947
/content/figure/9789927118968.b_9789927118968-ch07.b-9789927118968_007-fig7.10
FIGURE 7.10
Timeline of Bandar Abbas
The transitional period from the historic past to modern times for Bandar Abbas is identified as from the 1970s to the mid-1980s. The Iranian government’s decision to build a new deep-water port 8 km southwest of Bandar Abbas, opened in 1967, began to change the city markedly. The port can accommodate vessels with 10-m displacements and has an annual capacity of 1.5 million tons of cargo. In 1968, 220,000 tons of cargo passed through the harbour, and, by 1972–73, total tonnage reached 300,000. At the same time, the fishing fleet was revitalized and canning factory output hit 2.5 million. The Iranian naval headquarters in the Gulf was transferred there in 1973 and the Bandar Abbas-Kerman highway was constructed. During the Iran-Iraq war of 1980–1988, Bandar Abbas was developed as the country’s major commercial port. By the 1990s, about 75% of Iranian imports through the Gulf were offloaded at Bandar Abbas. The population grew from 17,710 in 1956 to 89,103 in 1976, and to 185,850 in 1984, to reach more than 450,000 by 2011. City master plans were made in 1968 and 2009.
9789927118968/b-9789927118968_007-fig10_thmb.gif
9789927118968/b-9789927118968_007-fig10.gif
FIGURE 7.10
Timeline of Bandar Abbas
The transitional period from the historic past to modern times for Bandar Abbas is identified as from the 1970s to the mid-1980s. The Iranian government’s decision to build a new deep-water port 8 km southwest of Bandar Abbas, opened in 1967, began to change the city markedly. The port can accommodate vessels with 10-m displacements and has an annual capacity of 1.5 million tons of cargo. In 1968, 220,000 tons of cargo passed through the harbour, and, by 1972–73, total tonnage reached 300,000. At the same time, the fishing fleet was revitalized and canning factory output hit 2.5 million. The Iranian naval headquarters in the Gulf was transferred there in 1973 and the Bandar Abbas-Kerman highway was constructed. During the Iran-Iraq war of 1980–1988, Bandar Abbas was developed as the country’s major commercial port. By the 1990s, about 75% of Iranian imports through the Gulf were offloaded at Bandar Abbas. The population grew from 17,710 in 1956 to 89,103 in 1976, and to 185,850 in 1984, to reach more than 450,000 by 2011. City master plans were made in 1968 and 2009.
/content/figure/9789927118968.b_9789927118968-ch07.b-9789927118968_007-fig7.11
FIGURE 7.11
Timeline of Bandar Lengeh
The transitional period from the historic past to the modern times for Bandar Lengeh is identified as from the 1970s to the mid-1980s, following the growth of nearby Bandar Abbas, albeit at a significantly slower pace and with less impact on the urban fabric. In 1925, after the establishment of the new Pahlavi regime, modern elements of governance were introduced into Lengeh, including the creation of a police force, the establishment of permanent barracks, and the building of a post office. However, the economy remained stagnant and the population in 1956 was under 5,000. With the growth of development in nearby Bandar Abbas in the 1970s, the population of Lengeh reached 9,000, as the agriculture in the area and its port provided some of the needs of Bandar Abbas. The town received a token master plan in the 1970s and a new plan in 2010.
9789927118968/b-9789927118968_007-fig11_thmb.gif
9789927118968/b-9789927118968_007-fig11.gif
FIGURE 7.11
Timeline of Bandar Lengeh
The transitional period from the historic past to the modern times for Bandar Lengeh is identified as from the 1970s to the mid-1980s, following the growth of nearby Bandar Abbas, albeit at a significantly slower pace and with less impact on the urban fabric. In 1925, after the establishment of the new Pahlavi regime, modern elements of governance were introduced into Lengeh, including the creation of a police force, the establishment of permanent barracks, and the building of a post office. However, the economy remained stagnant and the population in 1956 was under 5,000. With the growth of development in nearby Bandar Abbas in the 1970s, the population of Lengeh reached 9,000, as the agriculture in the area and its port provided some of the needs of Bandar Abbas. The town received a token master plan in the 1970s and a new plan in 2010.
/content/figure/9789927118968.b_9789927118968-ch07.b-9789927118968_007-img7.3
IMAGE 7.3
Outskirts of Bandar Abbas, 1973
9789927118968/b-9789927118968_007-img3_thmb.gif
9789927118968/b-9789927118968_007-img3.gif
IMAGE 7.3
Outskirts of Bandar Abbas, 1973
/content/figure/9789927118968.b_9789927118968-ch07.b-9789927118968_007-fig7.12
FIGURE 7.12
Timelines of public health and disease 7
9789927118968/b-9789927118968_007-fig12_thmb.gif
9789927118968/b-9789927118968_007-fig12.gif
FIGURE 7.12
Timelines of public health and disease 7
/content/figure/9789927118968.b_9789927118968-ch07.b-9789927118968_007-unfig6
Untitled
9789927118968/b-9789927118968_007-unfig6_thmb.gif
9789927118968/b-9789927118968_007-unfig6.gif
/content/figure/9789927118968.b_9789927118968-ch07.b-9789927118968_007-unfig7
Untitled
9789927118968/b-9789927118968_007-unfig7_thmb.gif
9789927118968/b-9789927118968_007-unfig7.gif
/content/figure/9789927118968.b_9789927118968-ch07.b-9789927118968_007-fig7.13
FIGURE 7.13
Regional landscape, 1908
9789927118968/b-9789927118968_007-fig13_thmb.gif
9789927118968/b-9789927118968_007-fig13.gif
FIGURE 7.13
Regional landscape, 1908
/content/figure/9789927118968.b_9789927118968-ch07.b-9789927118968_007-fig7.14
FIGURE 7.14
Agricultural land
9789927118968/b-9789927118968_007-fig14_thmb.gif
9789927118968/b-9789927118968_007-fig14.gif
FIGURE 7.14
Agricultural land
/content/figure/9789927118968.b_9789927118968-ch07.b-9789927118968_007-fig7.15
FIGURE 7.15
The topography of Bandar Abbas
9789927118968/b-9789927118968_007-fig15_thmb.gif
9789927118968/b-9789927118968_007-fig15.gif
FIGURE 7.15
The topography of Bandar Abbas
/content/figure/9789927118968.b_9789927118968-ch07.b-9789927118968_007-fig7.16
FIGURE 7.16
The rocky formation of the Zagros Mountains
The rocky formation of the Zagros Mountains close to the coast prevents the surface flow of water from penetrating the land surface. As a result, precipitation converges to seasonal wadis, which flow to the periphery of the cities.
9789927118968/b-9789927118968_007-fig16_thmb.gif
9789927118968/b-9789927118968_007-fig16.gif
FIGURE 7.16
The rocky formation of the Zagros Mountains
The rocky formation of the Zagros Mountains close to the coast prevents the surface flow of water from penetrating the land surface. As a result, precipitation converges to seasonal wadis, which flow to the periphery of the cities.
/content/figure/9789927118968.b_9789927118968-ch07.b-9789927118968_007-fig7.17
FIGURE 7.17
Pre-dredging water depth and intertidal zone
9789927118968/b-9789927118968_007-fig17_thmb.gif
9789927118968/b-9789927118968_007-fig17.gif
FIGURE 7.17
Pre-dredging water depth and intertidal zone
/content/figure/9789927118968.b_9789927118968-ch07.b-9789927118968_007-fig7.18
FIGURE 7.18
Sketch of Bandar Abbas, 18th century
9789927118968/b-9789927118968_007-fig18_thmb.gif
9789927118968/b-9789927118968_007-fig18.gif
FIGURE 7.18
Sketch of Bandar Abbas, 18th century
/content/figure/9789927118968.b_9789927118968-ch07.b-9789927118968_007-fig7.19
FIGURE 7.19
Urban parcels in Bandar Abbas
9789927118968/b-9789927118968_007-fig19_thmb.gif
9789927118968/b-9789927118968_007-fig19.gif
FIGURE 7.19
Urban parcels in Bandar Abbas
/content/figure/9789927118968.b_9789927118968-ch07.b-9789927118968_007-fig7.20
FIGURE 7.20
Evolution of the urban form
9789927118968/b-9789927118968_007-fig20_thmb.gif
9789927118968/b-9789927118968_007-fig20.gif
FIGURE 7.20
Evolution of the urban form
/content/figure/9789927118968.b_9789927118968-ch07.b-9789927118968_007-fig7.21
FIGURE 7.21
City evolution index
9789927118968/b-9789927118968_007-fig21_thmb.gif
9789927118968/b-9789927118968_007-fig21.gif
FIGURE 7.21
City evolution index
/content/figure/9789927118968.b_9789927118968-ch07.b-9789927118968_007-fig7.22
FIGURE 7.22
Area growth versus population growth
9789927118968/b-9789927118968_007-fig22_thmb.gif
9789927118968/b-9789927118968_007-fig22.gif
FIGURE 7.22
Area growth versus population growth
/content/figure/9789927118968.b_9789927118968-ch07.b-9789927118968_007-fig7.23
FIGURE 7.23
Seafront versus city perimeter
9789927118968/b-9789927118968_007-fig23_thmb.gif
9789927118968/b-9789927118968_007-fig23.gif
FIGURE 7.23
Seafront versus city perimeter
/content/figure/9789927118968.b_9789927118968-ch07.b-9789927118968_007-fig7.24
FIGURE 7.24
Urban growth of Bandar Abbas, 1916–1980
9789927118968/b-9789927118968_007-fig24_thmb.gif
9789927118968/b-9789927118968_007-fig24.gif
FIGURE 7.24
Urban growth of Bandar Abbas, 1916–1980
/content/figure/9789927118968.b_9789927118968-ch07.b-9789927118968_007-fig7.25
FIGURE 7.25
Coastline evolution and land reclamation
9789927118968/b-9789927118968_007-fig25_thmb.gif
9789927118968/b-9789927118968_007-fig25.gif
FIGURE 7.25
Coastline evolution and land reclamation
/content/figure/9789927118968.b_9789927118968-ch07.b-9789927118968_007-fig7.26
FIGURE 7.26
Accessibilities and road network
9789927118968/b-9789927118968_007-fig26_thmb.gif
9789927118968/b-9789927118968_007-fig26.gif
FIGURE 7.26
Accessibilities and road network
/content/figure/9789927118968.b_9789927118968-ch07.b-9789927118968_007-fig7.27
FIGURE 7.27
Building materials
9789927118968/b-9789927118968_007-fig27_thmb.gif
9789927118968/b-9789927118968_007-fig27.gif
FIGURE 7.27
Building materials
/content/figure/9789927118968.b_9789927118968-ch07.b-9789927118968_007-fig7.28
FIGURE 7.28
Water resources and cisterns in Bandar Abbas
9789927118968/b-9789927118968_007-fig28_thmb.gif
9789927118968/b-9789927118968_007-fig28.gif
FIGURE 7.28
Water resources and cisterns in Bandar Abbas
/content/figure/9789927118968.b_9789927118968-ch07.b-9789927118968_007-img7.4
IMAGE 7.4
Cisterns in Bandar Abbas
9789927118968/b-9789927118968_007-img4_thmb.gif
9789927118968/b-9789927118968_007-img4.gif
IMAGE 7.4
Cisterns in Bandar Abbas
/content/figure/9789927118968.b_9789927118968-ch07.b-9789927118968_007-fig7.29
FIGURE 7.29
City points of reference
9789927118968/b-9789927118968_007-fig29_thmb.gif
9789927118968/b-9789927118968_007-fig29.gif
FIGURE 7.29
City points of reference
/content/figure/9789927118968.b_9789927118968-ch07.b-9789927118968_007-fig7.30
FIGURE 7.30
Neighbourhood classification
9789927118968/b-9789927118968_007-fig30_thmb.gif
9789927118968/b-9789927118968_007-fig30.gif
FIGURE 7.30
Neighbourhood classification
/content/figure/9789927118968.b_9789927118968-ch07.b-9789927118968_007-fig7.31
FIGURE 7.31
Neighbourhood analysis
9789927118968/b-9789927118968_007-fig31_thmb.gif
9789927118968/b-9789927118968_007-fig31.gif
FIGURE 7.31
Neighbourhood analysis
/content/figure/9789927118968.b_9789927118968-ch07.b-9789927118968_007-fig7.32
FIGURE 7.32
Urban textures
9789927118968/b-9789927118968_007-fig32_thmb.gif
9789927118968/b-9789927118968_007-fig32.gif
FIGURE 7.32
Urban textures
/content/figure/9789927118968.b_9789927118968-ch07.b-9789927118968_007-fig7.33
FIGURE 7.33
Bandar Abbas Bazaar
9789927118968/b-9789927118968_007-fig33_thmb.gif
9789927118968/b-9789927118968_007-fig33.gif
FIGURE 7.33
Bandar Abbas Bazaar
/content/figure/9789927118968.b_9789927118968-ch07.b-9789927118968_007-fig7.33a
Untitled
9789927118968/b-9789927118968_007-fig33a_thmb.gif
9789927118968/b-9789927118968_007-fig33a.gif
/content/figure/9789927118968.b_9789927118968-ch07.b-9789927118968_007-fig7.34
FIGURE 7.34
The city’s economic model
9789927118968/b-9789927118968_007-fig34_thmb.gif
9789927118968/b-9789927118968_007-fig34.gif
FIGURE 7.34
The city’s economic model
/content/figure/9789927118968.b_9789927118968-ch07.b-9789927118968_007-img7.5
IMAGE 7.5
Aerial view of Bandar Abbas
9789927118968/b-9789927118968_007-img5_thmb.gif
9789927118968/b-9789927118968_007-img5.gif
IMAGE 7.5
Aerial view of Bandar Abbas
/content/figure/9789927118968.b_9789927118968-ch07.b-9789927118968_007-fig7.35
FIGURE 7.35
Historic zones of Bandar Abbas
9789927118968/b-9789927118968_007-fig35_thmb.gif
9789927118968/b-9789927118968_007-fig35.gif
FIGURE 7.35
Historic zones of Bandar Abbas
/content/figure/9789927118968.b_9789927118968-ch07.b-9789927118968_007-fig7.36
FIGURE 7.36
Selected neighbourhood: Suru
9789927118968/b-9789927118968_007-fig36_thmb.gif
9789927118968/b-9789927118968_007-fig36.gif
FIGURE 7.36
Selected neighbourhood: Suru
/content/figure/9789927118968.b_9789927118968-ch07.b-9789927118968_007-fig7.37
FIGURE 7.37
Selected neighbourhood: Balooch Ha
9789927118968/b-9789927118968_007-fig37_thmb.gif
9789927118968/b-9789927118968_007-fig37.gif
FIGURE 7.37
Selected neighbourhood: Balooch Ha
/content/figure/9789927118968.b_9789927118968-ch07.b-9789927118968_007-unfig8
Untitled
9789927118968/b-9789927118968_007-unfig8_thmb.gif
9789927118968/b-9789927118968_007-unfig8.gif
/content/figure/9789927118968.b_9789927118968-ch07.b-9789927118968_007-fig7.38
FIGURE 7.38
Neighbourhood analysis: Suru
9789927118968/b-9789927118968_007-fig38_thmb.gif
9789927118968/b-9789927118968_007-fig38.gif
FIGURE 7.38
Neighbourhood analysis: Suru
/content/figure/9789927118968.b_9789927118968-ch07.b-9789927118968_007-fig7.39
FIGURE 7.39
Neighbourhood analysis: Balooch Ha
9789927118968/b-9789927118968_007-fig39_thmb.gif
9789927118968/b-9789927118968_007-fig39.gif
FIGURE 7.39
Neighbourhood analysis: Balooch Ha
/content/figure/9789927118968.b_9789927118968-ch07.b-9789927118968_007-fig7.40
FIGURE 7.40
Neighbourhood analysis: Balooch Ha
9789927118968/b-9789927118968_007-fig40_thmb.gif
9789927118968/b-9789927118968_007-fig40.gif
FIGURE 7.40
Neighbourhood analysis: Balooch Ha
/content/figure/9789927118968.b_9789927118968-ch07.b-9789927118968_007-fig7.40a
Untitled
9789927118968/b-9789927118968_007-fig40a_thmb.gif
9789927118968/b-9789927118968_007-fig40a.gif
/content/figure/9789927118968.b_9789927118968-ch07.b-9789927118968_007-img7.6
IMAGE 7.6
Ghaledari Mosque, with its location in Bandar Abbas
9789927118968/b-9789927118968_007-img6_thmb.gif
9789927118968/b-9789927118968_007-img6.gif
IMAGE 7.6
Ghaledari Mosque, with its location in Bandar Abbas
/content/figure/9789927118968.b_9789927118968-ch07.b-9789927118968_007-unfig9
Untitled
9789927118968/b-9789927118968_007-unfig9_thmb.gif
9789927118968/b-9789927118968_007-unfig9.gif
/content/figure/9789927118968.b_9789927118968-ch07.b-9789927118968_007-fig7.41
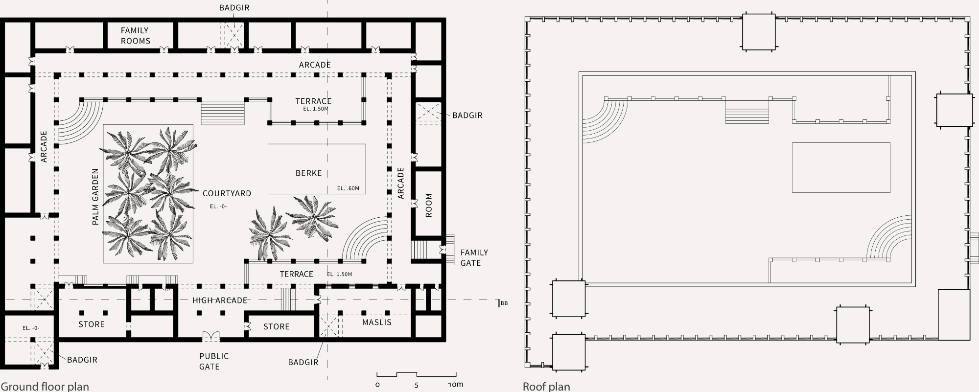
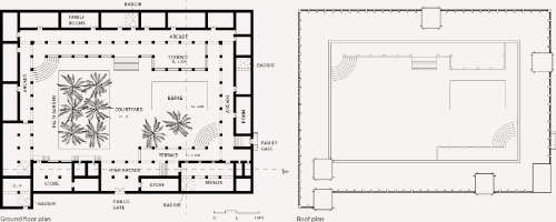
FIGURE 7.41
Plans and elevations
9789927118968/b-9789927118968_007-fig41_thmb.gif
9789927118968/b-9789927118968_007-fig41.gif
FIGURE 7.41
Plans and elevations
/content/figure/9789927118968.b_9789927118968-ch07.b-9789927118968_007-unfig10
Untitled
9789927118968/b-9789927118968_007-unfig10_thmb.gif
9789927118968/b-9789927118968_007-unfig10.gif
/content/figure/9789927118968.b_9789927118968-ch07.b-9789927118968_007-fig7.42
FIGURE 7.42
Plans and elevations
9789927118968/b-9789927118968_007-fig42_thmb.gif
9789927118968/b-9789927118968_007-fig42.gif
FIGURE 7.42
Plans and elevations
/content/figure/9789927118968.b_9789927118968-ch07.b-9789927118968_007-unfig11
Untitled
9789927118968/b-9789927118968_007-unfig11_thmb.gif
9789927118968/b-9789927118968_007-unfig11.gif
/content/figure/9789927118968.b_9789927118968-ch07.b-9789927118968_007-fig7.43
FIGURE 7.43
Plans and elevations
9789927118968/b-9789927118968_007-fig43_thmb.gif
9789927118968/b-9789927118968_007-fig43.gif
FIGURE 7.43
Plans and elevations
/content/figure/9789927118968.b_9789927118968-ch07.b-9789927118968_007-unfig12
Untitled
9789927118968/b-9789927118968_007-unfig12_thmb.gif
9789927118968/b-9789927118968_007-unfig12.gif
/content/figure/9789927118968.b_9789927118968-ch07.b-9789927118968_007-fig7.44
FIGURE 7.44
Plans and elevations
9789927118968/b-9789927118968_007-fig44_thmb.gif
9789927118968/b-9789927118968_007-fig44.gif
FIGURE 7.44
Plans and elevations
/content/figure/9789927118968.b_9789927118968-ch07.b-9789927118968_007-unfig13
Untitled
9789927118968/b-9789927118968_007-unfig13_thmb.gif
9789927118968/b-9789927118968_007-unfig13.gif
/content/figure/9789927118968.b_9789927118968-ch07.b-9789927118968_007-fig7.45
FIGURE 7.45
Plans and elevations
9789927118968/b-9789927118968_007-fig45_thmb.gif
9789927118968/b-9789927118968_007-fig45.gif
FIGURE 7.45
Plans and elevations
/content/figure/9789927118968.b_9789927118968-ch07.b-9789927118968_007-fig7.46
FIGURE 7.46
Configuration analysis
9789927118968/b-9789927118968_007-fig46_thmb.gif
9789927118968/b-9789927118968_007-fig46.gif
FIGURE 7.46
Configuration analysis
/content/figure/9789927118968.b_9789927118968-ch07.b-9789927118968_007-fig7.47
FIGURE 7.47
Visibility Graphs
9789927118968/b-9789927118968_007-fig47_thmb.gif
9789927118968/b-9789927118968_007-fig47.gif
FIGURE 7.47
Visibility Graphs
/content/figure/9789927118968.b_9789927118968-ch07.b-9789927118968_007-unfig14
Untitled
9789927118968/b-9789927118968_007-unfig14_thmb.gif
9789927118968/b-9789927118968_007-unfig14.gif
/content/figure/9789927118968.b_9789927118968-ch07.b-9789927118968_007-fig7.48
FIGURE 7.48
Justified Permeability Graphs
9789927118968/b-9789927118968_007-fig48_thmb.gif
9789927118968/b-9789927118968_007-fig48.gif
FIGURE 7.48
Justified Permeability Graphs
/content/figure/9789927118968.b_9789927118968-ch07.b-9789927118968_007-fig7.49
FIGURE 7.49
Shading analysis
9789927118968/b-9789927118968_007-fig49_thmb.gif
9789927118968/b-9789927118968_007-fig49.gif
FIGURE 7.49
Shading analysis
/content/figure/9789927118968.b_9789927118968-ch07.b-9789927118968_007-fig7.49a
Untitled
9789927118968/b-9789927118968_007-fig49a_thmb.gif
9789927118968/b-9789927118968_007-fig49a.gif
/content/figure/9789927118968.b_9789927118968-ch07.b-9789927118968_007-fig7.50
FIGURE 7.50
Daylighting analysis
9789927118968/b-9789927118968_007-fig50_thmb.gif
9789927118968/b-9789927118968_007-fig50.gif
FIGURE 7.50
Daylighting analysis
/content/figure/9789927118968.b_9789927118968-ch07.b-9789927118968_007-fig7.51
FIGURE 7.51
Illuminance analysis
9789927118968/b-9789927118968_007-fig51_thmb.gif
9789927118968/b-9789927118968_007-fig51.gif
FIGURE 7.51
Illuminance analysis
/content/figure/9789927118968.b_9789927118968-ch07.b-9789927118968_007-img7.7
IMAGE 7.7
Aerial image of Bandar Langeh, 1950
9789927118968/b-9789927118968_007-img7_thmb.gif
9789927118968/b-9789927118968_007-img7.gif
IMAGE 7.7
Aerial image of Bandar Langeh, 1950
/content/figure/9789927118968.b_9789927118968-ch07.b-9789927118968_007-fig7.52
FIGURE 7.52
Evolution of the urban form
9789927118968/b-9789927118968_007-fig52_thmb.gif
9789927118968/b-9789927118968_007-fig52.gif
FIGURE 7.52
Evolution of the urban form
/content/figure/9789927118968.b_9789927118968-ch07.b-9789927118968_007-fig7.53
FIGURE 7.53
City evolution index
9789927118968/b-9789927118968_007-fig53_thmb.gif
9789927118968/b-9789927118968_007-fig53.gif
FIGURE 7.53
City evolution index
/content/figure/9789927118968.b_9789927118968-ch07.b-9789927118968_007-fig7.54
FIGURE 7.54
Area growth versus population growth
9789927118968/b-9789927118968_007-fig54_thmb.gif
9789927118968/b-9789927118968_007-fig54.gif
FIGURE 7.54
Area growth versus population growth
/content/figure/9789927118968.b_9789927118968-ch07.b-9789927118968_007-fig7.55
FIGURE 7.55
Seafront versus city perimeter
9789927118968/b-9789927118968_007-fig55_thmb.gif
9789927118968/b-9789927118968_007-fig55.gif
FIGURE 7.55
Seafront versus city perimeter
/content/figure/9789927118968.b_9789927118968-ch07.b-9789927118968_007-fig7.56
FIGURE 7.56
Urban growth of
9789927118968/b-9789927118968_007-fig56_thmb.gif
9789927118968/b-9789927118968_007-fig56.gif
FIGURE 7.56
Urban growth of
/content/figure/9789927118968.b_9789927118968-ch07.b-9789927118968_007-fig7.57
FIGURE 7.57
Building materials
9789927118968/b-9789927118968_007-fig57_thmb.gif
9789927118968/b-9789927118968_007-fig57.gif
FIGURE 7.57
Building materials
/content/figure/9789927118968.b_9789927118968-ch07.b-9789927118968_007-fig7.58
FIGURE 7.58
Water resources and cisterns in Bandar Lengeh
9789927118968/b-9789927118968_007-fig58_thmb.gif
9789927118968/b-9789927118968_007-fig58.gif
FIGURE 7.58
Water resources and cisterns in Bandar Lengeh
/content/figure/9789927118968.b_9789927118968-ch07.b-9789927118968_007-img7.8
IMAGE 7.8
Birka cistern
9789927118968/b-9789927118968_007-img8_thmb.gif
9789927118968/b-9789927118968_007-img8.gif
IMAGE 7.8
Birka cistern
/content/figure/9789927118968.b_9789927118968-ch07.b-9789927118968_007-img7.9
IMAGE 7.9
Birka cistern: detail
9789927118968/b-9789927118968_007-img9_thmb.gif
9789927118968/b-9789927118968_007-img9.gif
IMAGE 7.9
Birka cistern: detail
/content/figure/9789927118968.b_9789927118968-ch07.b-9789927118968_007-fig7.59
FIGURE 7.59
Bandar Lengeh, 1950
9789927118968/b-9789927118968_007-fig59_thmb.gif
9789927118968/b-9789927118968_007-fig59.gif
FIGURE 7.59
Bandar Lengeh, 1950
/content/figure/9789927118968.b_9789927118968-ch07.b-9789927118968_007-fig7.60
FIGURE 7.60
City points of reference
9789927118968/b-9789927118968_007-fig60_thmb.gif
9789927118968/b-9789927118968_007-fig60.gif
FIGURE 7.60
City points of reference
/content/figure/9789927118968.b_9789927118968-ch07.b-9789927118968_007-fig7.61
FIGURE 7.61
Accessibilities and road network
9789927118968/b-9789927118968_007-fig61_thmb.gif
9789927118968/b-9789927118968_007-fig61.gif
FIGURE 7.61
Accessibilities and road network
/content/figure/9789927118968.b_9789927118968-ch07.b-9789927118968_007-fig7.62
FIGURE 7.62
Current urban fabric of Bandar Lengeh
9789927118968/b-9789927118968_007-fig62_thmb.gif
9789927118968/b-9789927118968_007-fig62.gif
FIGURE 7.62
Current urban fabric of Bandar Lengeh
/content/figure/9789927118968.b_9789927118968-ch07.b-9789927118968_007-fig7.63
FIGURE 7.63
Bandar Lengeh Bazaar
9789927118968/b-9789927118968_007-fig63_thmb.gif
9789927118968/b-9789927118968_007-fig63.gif
FIGURE 7.63
Bandar Lengeh Bazaar
/content/figure/9789927118968.b_9789927118968-ch07.b-9789927118968_007-fig7.63a
Untitled
9789927118968/b-9789927118968_007-fig63a_thmb.gif
9789927118968/b-9789927118968_007-fig63a.gif
/content/figure/9789927118968.b_9789927118968-ch07.b-9789927118968_007-fig7.64
FIGURE 7.64
The city’s economic model
9789927118968/b-9789927118968_007-fig64_thmb.gif
9789927118968/b-9789927118968_007-fig64.gif
FIGURE 7.64
The city’s economic model
/content/figure/9789927118968.b_9789927118968-ch07.b-9789927118968_007-fig7.65
FIGURE 7.65
Neighbourhood classification
9789927118968/b-9789927118968_007-fig65_thmb.gif
9789927118968/b-9789927118968_007-fig65.gif
FIGURE 7.65
Neighbourhood classification
/content/figure/9789927118968.b_9789927118968-ch07.b-9789927118968_007-fig7.65a
Untitled
9789927118968/b-9789927118968_007-fig65a_thmb.gif
9789927118968/b-9789927118968_007-fig65a.gif
/content/figure/9789927118968.b_9789927118968-ch07.b-9789927118968_007-img7.10
IMAGE 7.10
Aerial view of Bandar Lengeh
9789927118968/b-9789927118968_007-img10_thmb.gif
9789927118968/b-9789927118968_007-img10.gif
IMAGE 7.10
Aerial view of Bandar Lengeh
/content/figure/9789927118968.b_9789927118968-ch07.b-9789927118968_007-fig7.67
FIGURE 7.67
Historic zones of Bandar Lengeh
9789927118968/b-9789927118968_007-fig67_thmb.gif
9789927118968/b-9789927118968_007-fig67.gif
FIGURE 7.67
Historic zones of Bandar Lengeh
/content/figure/9789927118968.b_9789927118968-ch07.b-9789927118968_007-fig7.68
FIGURE 7.68
Selected neighbourhood: Bolooki
9789927118968/b-9789927118968_007-fig68_thmb.gif
9789927118968/b-9789927118968_007-fig68.gif
FIGURE 7.68
Selected neighbourhood: Bolooki
/content/figure/9789927118968.b_9789927118968-ch07.b-9789927118968_007-fig7.69
FIGURE 7.69
Neighbourhood analysis: Bolooki
9789927118968/b-9789927118968_007-fig69_thmb.gif
9789927118968/b-9789927118968_007-fig69.gif
FIGURE 7.69
Neighbourhood analysis: Bolooki
/content/figure/9789927118968.b_9789927118968-ch07.b-9789927118968_007-fig7.69a
Untitled
9789927118968/b-9789927118968_007-fig69a_thmb.gif
9789927118968/b-9789927118968_007-fig69a.gif
/content/figure/9789927118968.b_9789927118968-ch07.b-9789927118968_007-fig7.70
FIGURE 7.70
Neighbourhood analysis: Bolooki
9789927118968/b-9789927118968_007-fig70_thmb.gif
9789927118968/b-9789927118968_007-fig70.gif
FIGURE 7.70
Neighbourhood analysis: Bolooki
/content/figure/9789927118968.b_9789927118968-ch07.b-9789927118968_007-fig7.71
FIGURE 7.71
Urban textures
9789927118968/b-9789927118968_007-fig71_thmb.gif
9789927118968/b-9789927118968_007-fig71.gif
FIGURE 7.71
Urban textures
/content/figure/9789927118968.b_9789927118968-ch07.b-9789927118968_007-img7.11
IMAGE 7.11
Architecture of a traditional house in Bandar Lengeh
9789927118968/b-9789927118968_007-img11_thmb.gif
9789927118968/b-9789927118968_007-img11.gif
IMAGE 7.11
Architecture of a traditional house in Bandar Lengeh
/content/figure/9789927118968.b_9789927118968-ch07.b-9789927118968_007-fig7.72
FIGURE 7.72
Identification of units
9789927118968/b-9789927118968_007-fig72_thmb.gif
9789927118968/b-9789927118968_007-fig72.gif
FIGURE 7.72
Identification of units
/content/figure/9789927118968.b_9789927118968-ch07.b-9789927118968_007-unfig15
Untitled
9789927118968/b-9789927118968_007-unfig15_thmb.gif
9789927118968/b-9789927118968_007-unfig15.gif
/content/figure/9789927118968.b_9789927118968-ch07.b-9789927118968_007-fig7.73
FIGURE 7.73
Plans and elevations
9789927118968/b-9789927118968_007-fig73_thmb.gif
9789927118968/b-9789927118968_007-fig73.gif
FIGURE 7.73
Plans and elevations
/content/figure/9789927118968.b_9789927118968-ch07.b-9789927118968_007-unfig16
Untitled
9789927118968/b-9789927118968_007-unfig16_thmb.gif
9789927118968/b-9789927118968_007-unfig16.gif
/content/figure/9789927118968.b_9789927118968-ch07.b-9789927118968_007-fig7.74
FIGURE 7.74
Plans and elevations
9789927118968/b-9789927118968_007-fig74_thmb.gif
9789927118968/b-9789927118968_007-fig74.gif
FIGURE 7.74
Plans and elevations
/content/figure/9789927118968.b_9789927118968-ch07.b-9789927118968_007-fig7.75
FIGURE 7.75
Plans and elevations
9789927118968/b-9789927118968_007-fig75_thmb.gif
9789927118968/b-9789927118968_007-fig75.gif
FIGURE 7.75
Plans and elevations
/content/figure/9789927118968.b_9789927118968-ch07.b-9789927118968_007-unfig17
Untitled
9789927118968/b-9789927118968_007-unfig17_thmb.gif
9789927118968/b-9789927118968_007-unfig17.gif
/content/figure/9789927118968.b_9789927118968-ch07.b-9789927118968_007-unfig18
Untitled
9789927118968/b-9789927118968_007-unfig18_thmb.gif
9789927118968/b-9789927118968_007-unfig18.gif
/content/figure/9789927118968.b_9789927118968-ch07.b-9789927118968_007-fig7.76
FIGURE 7.76
Plans and elevations
9789927118968/b-9789927118968_007-fig76_thmb.gif
9789927118968/b-9789927118968_007-fig76.gif
FIGURE 7.76
Plans and elevations
/content/figure/9789927118968.b_9789927118968-ch07.b-9789927118968_007-unfig19
Untitled
9789927118968/b-9789927118968_007-unfig19_thmb.gif
9789927118968/b-9789927118968_007-unfig19.gif
/content/figure/9789927118968.b_9789927118968-ch07.b-9789927118968_007-fig7.77
FIGURE 7.77
Plans and elevations
9789927118968/b-9789927118968_007-fig77_thmb.gif
9789927118968/b-9789927118968_007-fig77.gif
FIGURE 7.77
Plans and elevations
/content/figure/9789927118968.b_9789927118968-ch07.b-9789927118968_007-fig7.78
FIGURE 7.78
Architectural detail: Bandar Lengeh
9789927118968/b-9789927118968_007-fig78_thmb.gif
9789927118968/b-9789927118968_007-fig78.gif
FIGURE 7.78
Architectural detail: Bandar Lengeh
/content/figure/9789927118968.b_9789927118968-ch07.b-9789927118968_007-fig7.79
FIGURE 7.79
Configuration analysis
9789927118968/b-9789927118968_007-fig79_thmb.gif
9789927118968/b-9789927118968_007-fig79.gif
FIGURE 7.79
Configuration analysis
/content/figure/9789927118968.b_9789927118968-ch07.b-9789927118968_007-fig7.79a
Untitled
9789927118968/b-9789927118968_007-fig79a_thmb.gif
9789927118968/b-9789927118968_007-fig79a.gif
/content/figure/9789927118968.b_9789927118968-ch07.b-9789927118968_007-fig7.80
FIGURE 7.80
Visibility Graphs
9789927118968/b-9789927118968_007-fig80_thmb.gif
9789927118968/b-9789927118968_007-fig80.gif
FIGURE 7.80
Visibility Graphs
/content/figure/9789927118968.b_9789927118968-ch07.b-9789927118968_007-fig7.80a
Untitled
9789927118968/b-9789927118968_007-fig80a_thmb.gif
9789927118968/b-9789927118968_007-fig80a.gif
/content/figure/9789927118968.b_9789927118968-ch07.b-9789927118968_007-unfig20
Untitled
9789927118968/b-9789927118968_007-unfig20_thmb.gif
9789927118968/b-9789927118968_007-unfig20.gif
/content/figure/9789927118968.b_9789927118968-ch07.b-9789927118968_007-fig7.81
FIGURE 7.81
Justified Permeability Graphs
9789927118968/b-9789927118968_007-fig81_thmb.gif
9789927118968/b-9789927118968_007-fig81.gif
FIGURE 7.81
Justified Permeability Graphs
/content/figure/9789927118968.b_9789927118968-ch07.b-9789927118968_007-fig7.82
FIGURE 7.82
Shading analysis
9789927118968/b-9789927118968_007-fig82_thmb.gif
9789927118968/b-9789927118968_007-fig82.gif
FIGURE 7.82
Shading analysis
/content/figure/9789927118968.b_9789927118968-ch07.b-9789927118968_007-fig7.82a
Untitled
9789927118968/b-9789927118968_007-fig82a_thmb.gif
9789927118968/b-9789927118968_007-fig82a.gif
/content/figure/9789927118968.b_9789927118968-ch07.b-9789927118968_007-fig7.82b
Untitled
9789927118968/b-9789927118968_007-fig82b_thmb.gif
9789927118968/b-9789927118968_007-fig82b.gif
/content/figure/9789927118968.b_9789927118968-ch07.b-9789927118968_007-fig7.83
FIGURE 7.83
Daylighting analysis
9789927118968/b-9789927118968_007-fig83_thmb.gif
9789927118968/b-9789927118968_007-fig83.gif
FIGURE 7.83
Daylighting analysis
/content/figure/9789927118968.b_9789927118968-ch07.b-9789927118968_007-fig7.84
FIGURE 7.84
Illuminance study
9789927118968/b-9789927118968_007-fig84_thmb.gif
9789927118968/b-9789927118968_007-fig84.gif
FIGURE 7.84
Illuminance study
/content/figure/9789927118968.b_9789927118968-ch07.b-9789927118968_007-fig7.85
FIGURE 7.85
Floor area ratios
9789927118968/b-9789927118968_007-fig85_thmb.gif
9789927118968/b-9789927118968_007-fig85.gif
FIGURE 7.85
Floor area ratios
-
From This Site
/content/chapter/9789927118968.b_9789927118968-ch07dcterms_subject,pub_keyword-contentType:Journal -contentType:Figure -contentType:Table -contentType:SupplementaryData105
/content/chapter/9789927118968.b_9789927118968-ch07
dcterms_subject,pub_keyword
-contentType:Journal -contentType:Figure -contentType:Table -contentType:SupplementaryData
10
5
Chapter
content/book/9789927118968
Book
true
ar