oa Muscat and Muttrah
Access full text
Chapter
- Authors: Prof. Spiro N. Pollalis and Nader Ardalan
- Source: Gulf Sustainable Urbanism – Past, Volume I , pp 382-447
- Publication Date: December 2018
- DOI: https://doi.org/10.5339/GSU.9789927118951_7
Full text loading...
/deliver/fulltext/9789927118951/9789927118951-ch06.html?itemId=/content/chapter/9789927118951.b_9789927118951-ch06&mimeType=html&fmt=ahah
Muscat and Muttrah
Hamad bin Khalifa University Press (HBKU Press) , 382 (2018); https://doi.org/10.5339/GSU.9789927118951_7
/content/chapter/9789927118951.b_9789927118951-ch06
/content/chapter/9789927118951.b_9789927118951-ch06
Figures
/content/figure/9789927118951.b_9789927118951-ch06.b-9789927118951_006-unfig1
Untitled
9789927118951/b-9789927118951_006-unfig1_thmb.gif
9789927118951/b-9789927118951_006-unfig1.gif
/content/figure/9789927118951.b_9789927118951-ch06.b-9789927118951_006-unfig2
Untitled
Muscat and Muttrah 2010
-
▸
Area: 86 km2
▸
Population: 734,700
▸
Density: 8,542/km2
9789927118951/b-9789927118951_006-unfig2_thmb.gif
9789927118951/b-9789927118951_006-unfig2.gif
Muscat and Muttrah 2010
-
▸
Area: 86 km2
▸
Population: 734,700
▸
Density: 8,542/km2
/content/figure/9789927118951.b_9789927118951-ch06.b-9789927118951_006-unfig3
Untitled
Muscat and Muttrah 1974
-
▸
Area: 1.7 km2
▸
Population: 22,000 approx
▸
Density: 12,941/km2
9789927118951/b-9789927118951_006-unfig3_thmb.gif
9789927118951/b-9789927118951_006-unfig3.gif
Muscat and Muttrah 1974
-
▸
Area: 1.7 km2
▸
Population: 22,000 approx
▸
Density: 12,941/km2
/content/figure/9789927118951.b_9789927118951-ch06.b-9789927118951_006-fig6.1
FIGURE 6.1
Map of Coast of Oman
9789927118951/b-9789927118951_006-fig1_thmb.gif
9789927118951/b-9789927118951_006-fig1.gif
FIGURE 6.1
Map of Coast of Oman
/content/figure/9789927118951.b_9789927118951-ch06.b-9789927118951_006-img6.1
IMAGE 6.1
Historical sketches of the natural harbour, Muscat
9789927118951/b-9789927118951_006-img1_thmb.gif
9789927118951/b-9789927118951_006-img1.gif
IMAGE 6.1
Historical sketches of the natural harbour, Muscat
/content/figure/9789927118951.b_9789927118951-ch06.b-9789927118951_006-fig6.2
FIGURE 6.2
Economic and political timeline of Muscat
9789927118951/b-9789927118951_006-fig2_thmb.gif
9789927118951/b-9789927118951_006-fig2.gif
FIGURE 6.2
Economic and political timeline of Muscat
/content/figure/9789927118951.b_9789927118951-ch06.b-9789927118951_006-fig6.3
FIGURE 6.3
Outdoor dry bulb temperature
Each column represents one day, each cell represents one hour
9789927118951/b-9789927118951_006-fig3_thmb.gif
9789927118951/b-9789927118951_006-fig3.gif
FIGURE 6.3
Outdoor dry bulb temperature
Each column represents one day, each cell represents one hour
/content/figure/9789927118951.b_9789927118951-ch06.b-9789927118951_006-fig6.4
FIGURE 6.4
Air temperatures and solar radiation
9789927118951/b-9789927118951_006-fig4_thmb.gif
9789927118951/b-9789927118951_006-fig4.gif
FIGURE 6.4
Air temperatures and solar radiation
/content/figure/9789927118951.b_9789927118951-ch06.b-9789927118951_006-fig6.5
FIGURE 6.5
Monthly humidity averages
9789927118951/b-9789927118951_006-fig5_thmb.gif
9789927118951/b-9789927118951_006-fig5.gif
FIGURE 6.5
Monthly humidity averages
/content/figure/9789927118951.b_9789927118951-ch06.b-9789927118951_006-fig6.6
FIGURE 6.6
Relative humidity and temperature
9789927118951/b-9789927118951_006-fig6_thmb.gif
9789927118951/b-9789927118951_006-fig6.gif
FIGURE 6.6
Relative humidity and temperature
/content/figure/9789927118951.b_9789927118951-ch06.b-9789927118951_006-fig6.7
FIGURE 6.7
Wind frequency
9789927118951/b-9789927118951_006-fig7_thmb.gif
9789927118951/b-9789927118951_006-fig7.gif
FIGURE 6.7
Wind frequency
/content/figure/9789927118951.b_9789927118951-ch06.b-9789927118951_006-img6.2
IMAGE 6.2
Aerial photograph of Muscat and Muttrah, 1950
9789927118951/b-9789927118951_006-img2_thmb.gif
9789927118951/b-9789927118951_006-img2.gif
IMAGE 6.2
Aerial photograph of Muscat and Muttrah, 1950
/content/figure/9789927118951.b_9789927118951-ch06.b-9789927118951_006-img6.3
IMAGE 6.3
Muscat, 1870
9789927118951/b-9789927118951_006-img3_thmb.gif
9789927118951/b-9789927118951_006-img3.gif
IMAGE 6.3
Muscat, 1870
/content/figure/9789927118951.b_9789927118951-ch06.b-9789927118951_006-img6.4
IMAGE 6.4
Muscat, 1880
9789927118951/b-9789927118951_006-img4_thmb.gif
9789927118951/b-9789927118951_006-img4.gif
IMAGE 6.4
Muscat, 1880
/content/figure/9789927118951.b_9789927118951-ch06.b-9789927118951_006-img6.5
IMAGE 6.5
Muttrah Fort, 1950 or 1960
9789927118951/b-9789927118951_006-img5_thmb.gif
9789927118951/b-9789927118951_006-img5.gif
IMAGE 6.5
Muttrah Fort, 1950 or 1960
/content/figure/9789927118951.b_9789927118951-ch06.b-9789927118951_006-img6.6
IMAGE 6.6
View of Muscat from Riyam Pass, 1908
9789927118951/b-9789927118951_006-img6_thmb.gif
9789927118951/b-9789927118951_006-img6.gif
IMAGE 6.6
View of Muscat from Riyam Pass, 1908
/content/figure/9789927118951.b_9789927118951-ch06.b-9789927118951_006-img6.7
IMAGE 6.7
Muscat’s Fort Al-Mirani, 1970
9789927118951/b-9789927118951_006-img7_thmb.gif
9789927118951/b-9789927118951_006-img7.gif
IMAGE 6.7
Muscat’s Fort Al-Mirani, 1970
/content/figure/9789927118951.b_9789927118951-ch06.b-9789927118951_006-img6.8
IMAGE 6.8
View from Muttrah Fort, 1969
9789927118951/b-9789927118951_006-img8_thmb.gif
9789927118951/b-9789927118951_006-img8.gif
IMAGE 6.8
View from Muttrah Fort, 1969
/content/figure/9789927118951.b_9789927118951-ch06.b-9789927118951_006-fig6.8
FIGURE 6.8
Common historic illnesses
9789927118951/b-9789927118951_006-fig8_thmb.gif
9789927118951/b-9789927118951_006-fig8.gif
FIGURE 6.8
Common historic illnesses
/content/figure/9789927118951.b_9789927118951-ch06.b-9789927118951_006-fig6.9
FIGURE 6.9
Reported rates or cases of major diseases in Oman from 1951–1995
9789927118951/b-9789927118951_006-fig9_thmb.gif
9789927118951/b-9789927118951_006-fig9.gif
FIGURE 6.9
Reported rates or cases of major diseases in Oman from 1951–1995
/content/figure/9789927118951.b_9789927118951-ch06.b-9789927118951_006-img6.9
IMAGE 6.9
Muscat Market outside of the walls to Sidab road, 1967
9789927118951/b-9789927118951_006-img9_thmb.gif
9789927118951/b-9789927118951_006-img9.gif
IMAGE 6.9
Muscat Market outside of the walls to Sidab road, 1967
/content/figure/9789927118951.b_9789927118951-ch06.b-9789927118951_006-img6.10
IMAGE 6.10
Palace Bayt Al-Alam, Muscat, 1908
9789927118951/b-9789927118951_006-img10_thmb.gif
9789927118951/b-9789927118951_006-img10.gif
IMAGE 6.10
Palace Bayt Al-Alam, Muscat, 1908
/content/figure/9789927118951.b_9789927118951-ch06.b-9789927118951_006-img6.11
IMAGE 6.11
Muttrah’s fishmarket, 1968
9789927118951/b-9789927118951_006-img11_thmb.gif
9789927118951/b-9789927118951_006-img11.gif
IMAGE 6.11
Muttrah’s fishmarket, 1968
/content/figure/9789927118951.b_9789927118951-ch06.b-9789927118951_006-img6.12
IMAGE 6.12
Muscat, 1950
9789927118951/b-9789927118951_006-img12_thmb.gif
9789927118951/b-9789927118951_006-img12.gif
IMAGE 6.12
Muscat, 1950
/content/figure/9789927118951.b_9789927118951-ch06.b-9789927118951_006-img6.13
IMAGE 6.13
Muscat’s Khawr Jetty, 1967
9789927118951/b-9789927118951_006-img13_thmb.gif
9789927118951/b-9789927118951_006-img13.gif
IMAGE 6.13
Muscat’s Khawr Jetty, 1967
/content/figure/9789927118951.b_9789927118951-ch06.b-9789927118951_006-img6.14
IMAGE 6.14
Muttrah’s waterfront to the east and Muttrah Fort, 1969
9789927118951/b-9789927118951_006-img14_thmb.gif
9789927118951/b-9789927118951_006-img14.gif
IMAGE 6.14
Muttrah’s waterfront to the east and Muttrah Fort, 1969
/content/figure/9789927118951.b_9789927118951-ch06.b-9789927118951_006-fig6.10
FIGURE 6.10
Timeline of Muscat and Oman
Muscat entered the transitionary period from the historic past to the modern times only in 1970, when Sultan Qaboos became the ruler of Oman. The transitionary period lasted a decade, until 1980, during which the master plan for Muscat was drawn up (1970), the first modern school was opened (1971), the design for the Muscat International Airport was initiated (1973), a major five-year development plan for roads and infrastructure was launched (1976), and the establishment of the National Statistics Institute (1977). Muscat is an example where the discovery of oil and the subsequent oil revenue did not immediately bring modernization to the city; rather, the social dimensions needed to change before the physical form and function of the city could follow.
9789927118951/b-9789927118951_006-fig10_thmb.gif
9789927118951/b-9789927118951_006-fig10.gif
FIGURE 6.10
Timeline of Muscat and Oman
Muscat entered the transitionary period from the historic past to the modern times only in 1970, when Sultan Qaboos became the ruler of Oman. The transitionary period lasted a decade, until 1980, during which the master plan for Muscat was drawn up (1970), the first modern school was opened (1971), the design for the Muscat International Airport was initiated (1973), a major five-year development plan for roads and infrastructure was launched (1976), and the establishment of the National Statistics Institute (1977). Muscat is an example where the discovery of oil and the subsequent oil revenue did not immediately bring modernization to the city; rather, the social dimensions needed to change before the physical form and function of the city could follow.
/content/figure/9789927118951.b_9789927118951-ch06.b-9789927118951_006-unfig4
Untitled
9789927118951/b-9789927118951_006-unfig4_thmb.gif
9789927118951/b-9789927118951_006-unfig4.gif
/content/figure/9789927118951.b_9789927118951-ch06.b-9789927118951_006-unfig5
Untitled
9789927118951/b-9789927118951_006-unfig5_thmb.gif
9789927118951/b-9789927118951_006-unfig5.gif
/content/figure/9789927118951.b_9789927118951-ch06.b-9789927118951_006-fig6.11
FIGURE 6.11
Pre-oil economic status
9789927118951/b-9789927118951_006-fig11_thmb.gif
9789927118951/b-9789927118951_006-fig11.gif
FIGURE 6.11
Pre-oil economic status
/content/figure/9789927118951.b_9789927118951-ch06.b-9789927118951_006-fig6.12
FIGURE 6.12
Regional and subregional imports and exports
9789927118951/b-9789927118951_006-fig12_thmb.gif
9789927118951/b-9789927118951_006-fig12.gif
FIGURE 6.12
Regional and subregional imports and exports
/content/figure/9789927118951.b_9789927118951-ch06.b-9789927118951_006-fig6.13
FIGURE 6.13
Pre-oil shipping industry
9789927118951/b-9789927118951_006-fig13_thmb.gif
9789927118951/b-9789927118951_006-fig13.gif
FIGURE 6.13
Pre-oil shipping industry
/content/figure/9789927118951.b_9789927118951-ch06.b-9789927118951_006-img6.15
IMAGE 6.15
Satellite image of the Omani coast
9789927118951/b-9789927118951_006-img15_thmb.gif
9789927118951/b-9789927118951_006-img15.gif
IMAGE 6.15
Satellite image of the Omani coast
/content/figure/9789927118951.b_9789927118951-ch06.b-9789927118951_006-img6.16
IMAGE 6.16
Aerial image of the Omani coastline, showing Qaboos Port and surroundings
9789927118951/b-9789927118951_006-img16_thmb.gif
9789927118951/b-9789927118951_006-img16.gif
IMAGE 6.16
Aerial image of the Omani coastline, showing Qaboos Port and surroundings
/content/figure/9789927118951.b_9789927118951-ch06.b-9789927118951_006-fig6.14
FIGURE 6.14
Edge topography
9789927118951/b-9789927118951_006-fig14_thmb.gif
9789927118951/b-9789927118951_006-fig14.gif
FIGURE 6.14
Edge topography
/content/figure/9789927118951.b_9789927118951-ch06.b-9789927118951_006-fig6.15
FIGURE 6.15
Surface flow and wadis
9789927118951/b-9789927118951_006-fig15_thmb.gif
9789927118951/b-9789927118951_006-fig15.gif
FIGURE 6.15
Surface flow and wadis
/content/figure/9789927118951.b_9789927118951-ch06.b-9789927118951_006-fig6.16
FIGURE 6.16
Date plantation and falaj system
9789927118951/b-9789927118951_006-fig16_thmb.gif
9789927118951/b-9789927118951_006-fig16.gif
FIGURE 6.16
Date plantation and falaj system
/content/figure/9789927118951.b_9789927118951-ch06.b-9789927118951_006-fig6.17
FIGURE 6.17
Urban settlements and connections
9789927118951/b-9789927118951_006-fig17_thmb.gif
9789927118951/b-9789927118951_006-fig17.gif
FIGURE 6.17
Urban settlements and connections
/content/figure/9789927118951.b_9789927118951-ch06.b-9789927118951_006-fig6.18
FIGURE 6.18
Elevation
9789927118951/b-9789927118951_006-fig18_thmb.gif
9789927118951/b-9789927118951_006-fig18.gif
FIGURE 6.18
Elevation
/content/figure/9789927118951.b_9789927118951-ch06.b-9789927118951_006-img6.17
IMAGE 6.17
9789927118951/b-9789927118951_006-img17_thmb.gif
9789927118951/b-9789927118951_006-img17.gif
IMAGE 6.17
/content/figure/9789927118951.b_9789927118951-ch06.b-9789927118951_006-fig6.19
FIGURE 6.19
Evolution of the urban form
9789927118951/b-9789927118951_006-fig19_thmb.gif
9789927118951/b-9789927118951_006-fig19.gif
FIGURE 6.19
Evolution of the urban form
/content/figure/9789927118951.b_9789927118951-ch06.b-9789927118951_006-fig6.20
FIGURE 6.20
City evolution index
9789927118951/b-9789927118951_006-fig20_thmb.gif
9789927118951/b-9789927118951_006-fig20.gif
FIGURE 6.20
City evolution index
/content/figure/9789927118951.b_9789927118951-ch06.b-9789927118951_006-fig6.21
FIGURE 6.21
Area growth versus population growth
9789927118951/b-9789927118951_006-fig21_thmb.gif
9789927118951/b-9789927118951_006-fig21.gif
FIGURE 6.21
Area growth versus population growth
/content/figure/9789927118951.b_9789927118951-ch06.b-9789927118951_006-fig6.22
FIGURE 6.22
Seafront versus city perimeter
9789927118951/b-9789927118951_006-fig22_thmb.gif
9789927118951/b-9789927118951_006-fig22.gif
FIGURE 6.22
Seafront versus city perimeter
/content/figure/9789927118951.b_9789927118951-ch06.b-9789927118951_006-fig6.23
FIGURE 6.23
Urban growth, 1860–1974
9789927118951/b-9789927118951_006-fig23_thmb.gif
9789927118951/b-9789927118951_006-fig23.gif
FIGURE 6.23
Urban growth, 1860–1974
/content/figure/9789927118951.b_9789927118951-ch06.b-9789927118951_006-fig6.24
FIGURE 6.24
Evolution of the coastline
9789927118951/b-9789927118951_006-fig24_thmb.gif
9789927118951/b-9789927118951_006-fig24.gif
FIGURE 6.24
Evolution of the coastline
/content/figure/9789927118951.b_9789927118951-ch06.b-9789927118951_006-fig6.25
FIGURE 6.25
Land reclamation
9789927118951/b-9789927118951_006-fig25_thmb.gif
9789927118951/b-9789927118951_006-fig25.gif
FIGURE 6.25
Land reclamation
/content/figure/9789927118951.b_9789927118951-ch06.b-9789927118951_006-fig6.26
FIGURE 6.26
Sea and land accessibilities
9789927118951/b-9789927118951_006-fig26_thmb.gif
9789927118951/b-9789927118951_006-fig26.gif
FIGURE 6.26
Sea and land accessibilities
/content/figure/9789927118951.b_9789927118951-ch06.b-9789927118951_006-fig6.27
FIGURE 6.27
Water resources
Data not available for Muttrah region
9789927118951/b-9789927118951_006-fig27_thmb.gif
9789927118951/b-9789927118951_006-fig27.gif
FIGURE 6.27
Water resources
Data not available for Muttrah region
/content/figure/9789927118951.b_9789927118951-ch06.b-9789927118951_006-fig6.28
FIGURE 6.28
Falaj water distribution
9789927118951/b-9789927118951_006-fig28_thmb.gif
9789927118951/b-9789927118951_006-fig28.gif
FIGURE 6.28
Falaj water distribution
/content/figure/9789927118951.b_9789927118951-ch06.b-9789927118951_006-img6.18
IMAGE 6.18
A scene in one of Muscat’s gardens in 1910
9789927118951/b-9789927118951_006-img18_thmb.gif
9789927118951/b-9789927118951_006-img18.gif
IMAGE 6.18
A scene in one of Muscat’s gardens in 1910
/content/figure/9789927118951.b_9789927118951-ch06.b-9789927118951_006-fig6.29
FIGURE 6.29
Schematic representation of a draw well
9789927118951/b-9789927118951_006-fig29_thmb.gif
9789927118951/b-9789927118951_006-fig29.gif
FIGURE 6.29
Schematic representation of a draw well
/content/figure/9789927118951.b_9789927118951-ch06.b-9789927118951_006-img6.19
IMAGE 6.19
A typical streetside falaj
9789927118951/b-9789927118951_006-img19_thmb.gif
9789927118951/b-9789927118951_006-img19.gif
IMAGE 6.19
A typical streetside falaj
/content/figure/9789927118951.b_9789927118951-ch06.b-9789927118951_006-img6.20
IMAGE 6.20
Falaj Al-Tanuf
9789927118951/b-9789927118951_006-img20_thmb.gif
9789927118951/b-9789927118951_006-img20.gif
IMAGE 6.20
Falaj Al-Tanuf
/content/figure/9789927118951.b_9789927118951-ch06.b-9789927118951_006-img6.21
IMAGE 6.21
Traditional falaj
9789927118951/b-9789927118951_006-img21_thmb.gif
9789927118951/b-9789927118951_006-img21.gif
IMAGE 6.21
Traditional falaj
/content/figure/9789927118951.b_9789927118951-ch06.b-9789927118951_006-fig6.30
FIGURE 6.30
Urban components
Muscat: Points of reference are concentrated in the core of the city, the ruler’s district.
Muttrah: Points of reference are dispersed along the city with higher concentration along the seafront.
9789927118951/b-9789927118951_006-fig30_thmb.gif
9789927118951/b-9789927118951_006-fig30.gif
FIGURE 6.30
Urban components
Muscat: Points of reference are concentrated in the core of the city, the ruler’s district.
Muttrah: Points of reference are dispersed along the city with higher concentration along the seafront.
/content/figure/9789927118951.b_9789927118951-ch06.b-9789927118951_006-fig6.31
FIGURE 6.31
City points of reference, 1974
9789927118951/b-9789927118951_006-fig31_thmb.gif
9789927118951/b-9789927118951_006-fig31.gif
FIGURE 6.31
City points of reference, 1974
/content/figure/9789927118951.b_9789927118951-ch06.b-9789927118951_006-fig6.32
FIGURE 6.32
Road network
9789927118951/b-9789927118951_006-fig32_thmb.gif
9789927118951/b-9789927118951_006-fig32.gif
FIGURE 6.32
Road network
/content/figure/9789927118951.b_9789927118951-ch06.b-9789927118951_006-fig6.33
FIGURE 6.33
Domestic distances
9789927118951/b-9789927118951_006-fig33_thmb.gif
9789927118951/b-9789927118951_006-fig33.gif
FIGURE 6.33
Domestic distances
/content/figure/9789927118951.b_9789927118951-ch06.b-9789927118951_006-fig6.34
FIGURE 6.34
‘Arish and masonry buildings, 1974
9789927118951/b-9789927118951_006-fig34_thmb.gif
9789927118951/b-9789927118951_006-fig34.gif
FIGURE 6.34
‘Arish and masonry buildings, 1974
/content/figure/9789927118951.b_9789927118951-ch06.b-9789927118951_006-img6.22
IMAGE 6.22
Construction of a barasti structure in the 1960s
9789927118951/b-9789927118951_006-img22_thmb.gif
9789927118951/b-9789927118951_006-img22.gif
IMAGE 6.22
Construction of a barasti structure in the 1960s
/content/figure/9789927118951.b_9789927118951-ch06.b-9789927118951_006-img6.23
IMAGE 6.23
‘Arish structure
9789927118951/b-9789927118951_006-img23_thmb.gif
9789927118951/b-9789927118951_006-img23.gif
IMAGE 6.23
‘Arish structure
/content/figure/9789927118951.b_9789927118951-ch06.b-9789927118951_006-img6.24
IMAGE 6.24
Barasti dwellings
9789927118951/b-9789927118951_006-img24_thmb.gif
9789927118951/b-9789927118951_006-img24.gif
IMAGE 6.24
Barasti dwellings
/content/figure/9789927118951.b_9789927118951-ch06.b-9789927118951_006-fig6.35
FIGURE 6.35
Neighbourhood classification
9789927118951/b-9789927118951_006-fig35_thmb.gif
9789927118951/b-9789927118951_006-fig35.gif
FIGURE 6.35
Neighbourhood classification
/content/figure/9789927118951.b_9789927118951-ch06.b-9789927118951_006-fig6.36
FIGURE 6.36
Neighbourhood analysis
9789927118951/b-9789927118951_006-fig36_thmb.gif
9789927118951/b-9789927118951_006-fig36.gif
FIGURE 6.36
Neighbourhood analysis
/content/figure/9789927118951.b_9789927118951-ch06.b-9789927118951_006-img6.25
IMAGE 6.25
Muscat, 1971
9789927118951/b-9789927118951_006-img25_thmb.gif
9789927118951/b-9789927118951_006-img25.gif
IMAGE 6.25
Muscat, 1971
/content/figure/9789927118951.b_9789927118951-ch06.b-9789927118951_006-img6.26
IMAGE 6.26
Seafront, late 1960s
9789927118951/b-9789927118951_006-img26_thmb.gif
9789927118951/b-9789927118951_006-img26.gif
IMAGE 6.26
Seafront, late 1960s
/content/figure/9789927118951.b_9789927118951-ch06.b-9789927118951_006-img6.27
IMAGE 6.27
General view of Muscat, late 1960s
9789927118951/b-9789927118951_006-img27_thmb.gif
9789927118951/b-9789927118951_006-img27.gif
IMAGE 6.27
General view of Muscat, late 1960s
/content/figure/9789927118951.b_9789927118951-ch06.b-9789927118951_006-img6.28
IMAGE 6.28
General view of Muscat, with Fort Mirani to right in the distance
9789927118951/b-9789927118951_006-img28_thmb.gif
9789927118951/b-9789927118951_006-img28.gif
IMAGE 6.28
General view of Muscat, with Fort Mirani to right in the distance
/content/figure/9789927118951.b_9789927118951-ch06.b-9789927118951_006-fig6.37
FIGURE 6.37
Souqs of Muscat and Muttrah
9789927118951/b-9789927118951_006-fig37_thmb.gif
9789927118951/b-9789927118951_006-fig37.gif
FIGURE 6.37
Souqs of Muscat and Muttrah
/content/figure/9789927118951.b_9789927118951-ch06.b-9789927118951_006-img6.29
IMAGE 6.29
Muttrah, 1950s-60s
9789927118951/b-9789927118951_006-img29_thmb.gif
9789927118951/b-9789927118951_006-img29.gif
IMAGE 6.29
Muttrah, 1950s-60s
/content/figure/9789927118951.b_9789927118951-ch06.b-9789927118951_006-img6.30
IMAGE 6.30
Muscat, about 1870
9789927118951/b-9789927118951_006-img30_thmb.gif
9789927118951/b-9789927118951_006-img30.gif
IMAGE 6.30
Muscat, about 1870
/content/figure/9789927118951.b_9789927118951-ch06.b-9789927118951_006-fig6.38
FIGURE 6.38
The souq’s relation to the city
9789927118951/b-9789927118951_006-fig38_thmb.gif
9789927118951/b-9789927118951_006-fig38.gif
FIGURE 6.38
The souq’s relation to the city
/content/figure/9789927118951.b_9789927118951-ch06.b-9789927118951_006-fig6.39
FIGURE 6.39
The souqs and the road network
9789927118951/b-9789927118951_006-fig39_thmb.gif
9789927118951/b-9789927118951_006-fig39.gif
FIGURE 6.39
The souqs and the road network
/content/figure/9789927118951.b_9789927118951-ch06.b-9789927118951_006-fig6.40
FIGURE 6.40
The souq’s ratio to city area
9789927118951/b-9789927118951_006-fig40_thmb.gif
9789927118951/b-9789927118951_006-fig40.gif
FIGURE 6.40
The souq’s ratio to city area
/content/figure/9789927118951.b_9789927118951-ch06.b-9789927118951_006-fig6.41
FIGURE 6.41
The souq’s relation to residential areas
9789927118951/b-9789927118951_006-fig41_thmb.gif
9789927118951/b-9789927118951_006-fig41.gif
FIGURE 6.41
The souq’s relation to residential areas
/content/figure/9789927118951.b_9789927118951-ch06.b-9789927118951_006-fig6.42
FIGURE 6.42
Souq Muttrah: Configuration and bordering context
9789927118951/b-9789927118951_006-fig42_thmb.gif
9789927118951/b-9789927118951_006-fig42.gif
FIGURE 6.42
Souq Muttrah: Configuration and bordering context
/content/figure/9789927118951.b_9789927118951-ch06.b-9789927118951_006-fig6.43
FIGURE 6.43
Activities zoning in Souq Muttrah
9789927118951/b-9789927118951_006-fig43_thmb.gif
9789927118951/b-9789927118951_006-fig43.gif
FIGURE 6.43
Activities zoning in Souq Muttrah
/content/figure/9789927118951.b_9789927118951-ch06.b-9789927118951_006-fig6.44
FIGURE 6.44
Roofed pathways in Souq Muttrah
9789927118951/b-9789927118951_006-fig44_thmb.gif
9789927118951/b-9789927118951_006-fig44.gif
FIGURE 6.44
Roofed pathways in Souq Muttrah
/content/figure/9789927118951.b_9789927118951-ch06.b-9789927118951_006-fig6.45
FIGURE 6.45
Economical models
9789927118951/b-9789927118951_006-fig45_thmb.gif
9789927118951/b-9789927118951_006-fig45.gif
FIGURE 6.45
Economical models
/content/figure/9789927118951.b_9789927118951-ch06.b-9789927118951_006-unfig6
Untitled
9789927118951/b-9789927118951_006-unfig6_thmb.gif
9789927118951/b-9789927118951_006-unfig6.gif
/content/figure/9789927118951.b_9789927118951-ch06.b-9789927118951_006-img6.31
IMAGE 6.31
Aerial view of Sur Al-Lawatiya, Muttrah
9789927118951/b-9789927118951_006-img31_thmb.gif
9789927118951/b-9789927118951_006-img31.gif
IMAGE 6.31
Aerial view of Sur Al-Lawatiya, Muttrah
/content/figure/9789927118951.b_9789927118951-ch06.b-9789927118951_006-fig6.46
FIGURE 6.46
Neighbourhood identification and character
9789927118951/b-9789927118951_006-fig46_thmb.gif
9789927118951/b-9789927118951_006-fig46.gif
FIGURE 6.46
Neighbourhood identification and character
/content/figure/9789927118951.b_9789927118951-ch06.b-9789927118951_006-fig6.47
FIGURE 6.47
Neighbourhood analysis
9789927118951/b-9789927118951_006-fig47_thmb.gif
9789927118951/b-9789927118951_006-fig47.gif
FIGURE 6.47
Neighbourhood analysis
/content/figure/9789927118951.b_9789927118951-ch06.b-9789927118951_006-unfig7
Untitled
9789927118951/b-9789927118951_006-unfig7_thmb.gif
9789927118951/b-9789927118951_006-unfig7.gif
/content/figure/9789927118951.b_9789927118951-ch06.b-9789927118951_006-fig6.48
FIGURE 6.48
Neighbourhood analysis
9789927118951/b-9789927118951_006-fig48_thmb.gif
9789927118951/b-9789927118951_006-fig48.gif
FIGURE 6.48
Neighbourhood analysis
/content/figure/9789927118951.b_9789927118951-ch06.b-9789927118951_006-fig6.49
FIGURE 6.49
Urban textures of Sur Al-Lawatiya, Muttrah
9789927118951/b-9789927118951_006-fig49_thmb.gif
9789927118951/b-9789927118951_006-fig49.gif
FIGURE 6.49
Urban textures of Sur Al-Lawatiya, Muttrah
/content/figure/9789927118951.b_9789927118951-ch06.b-9789927118951_006-unfig8
Untitled
9789927118951/b-9789927118951_006-unfig8_thmb.gif
9789927118951/b-9789927118951_006-unfig8.gif
/content/figure/9789927118951.b_9789927118951-ch06.b-9789927118951_006-fig6.50
FIGURE 6.50
Identification of units
9789927118951/b-9789927118951_006-fig50_thmb.gif
9789927118951/b-9789927118951_006-fig50.gif
FIGURE 6.50
Identification of units
/content/figure/9789927118951.b_9789927118951-ch06.b-9789927118951_006-fig6.51
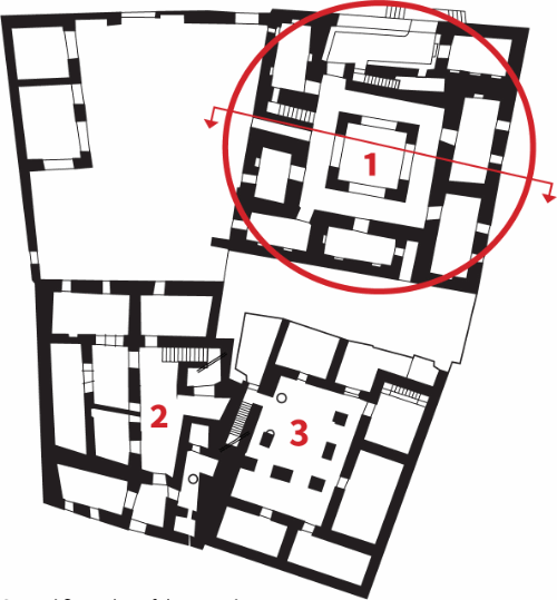
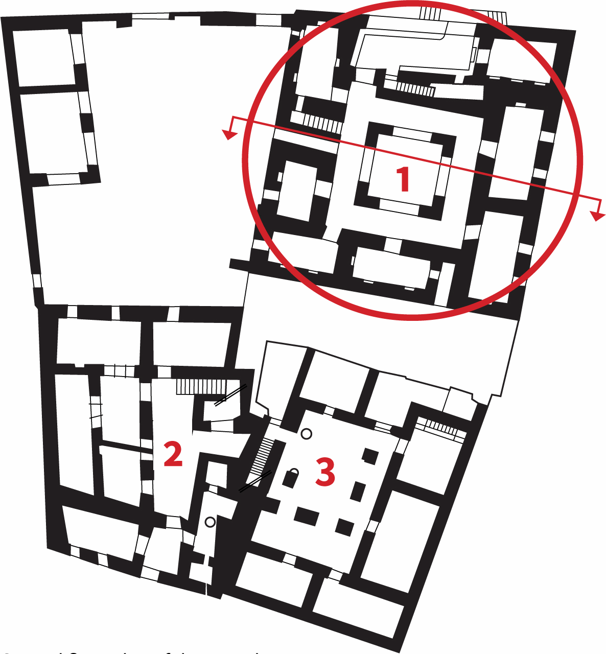
FIGURE 6.51
Residence complex: Nadir House (1), Muzna House (2), and Al-Budinah School (3)
Ground floor plan of the complex
9789927118951/b-9789927118951_006-fig51_thmb.gif
9789927118951/b-9789927118951_006-fig51.gif
FIGURE 6.51
Residence complex: Nadir House (1), Muzna House (2), and Al-Budinah School (3)
Ground floor plan of the complex
/content/figure/9789927118951.b_9789927118951-ch06.b-9789927118951_006-img6.32
IMAGE 6.32
The façade of Nadir House
9789927118951/b-9789927118951_006-img32_thmb.gif
9789927118951/b-9789927118951_006-img32.gif
IMAGE 6.32
The façade of Nadir House
/content/figure/9789927118951.b_9789927118951-ch06.b-9789927118951_006-fig6.52
FIGURE 6.52
Elevations of Nadir House
9789927118951/b-9789927118951_006-fig52_thmb.gif
9789927118951/b-9789927118951_006-fig52.gif
FIGURE 6.52
Elevations of Nadir House
/content/figure/9789927118951.b_9789927118951-ch06.b-9789927118951_006-img6.33
IMAGE 6.33
Main doorway to Nadir House
9789927118951/b-9789927118951_006-img33_thmb.gif
9789927118951/b-9789927118951_006-img33.gif
IMAGE 6.33
Main doorway to Nadir House
/content/figure/9789927118951.b_9789927118951-ch06.b-9789927118951_006-fig6.53
FIGURE 6.53
Nadir House: 3D projection
9789927118951/b-9789927118951_006-fig53_thmb.gif
9789927118951/b-9789927118951_006-fig53.gif
FIGURE 6.53
Nadir House: 3D projection
/content/figure/9789927118951.b_9789927118951-ch06.b-9789927118951_006-fig6.54
FIGURE 6.54
Elevations of Muzna House and Al-Budinah School
9789927118951/b-9789927118951_006-fig54_thmb.gif
9789927118951/b-9789927118951_006-fig54.gif
FIGURE 6.54
Elevations of Muzna House and Al-Budinah School
/content/figure/9789927118951.b_9789927118951-ch06.b-9789927118951_006-img6.34
IMAGE 6.34
The interior courtyard, showing stone semicircular arches on the ground floor and the first-floor gallery with wrought-iron parapet
9789927118951/b-9789927118951_006-img34_thmb.gif
9789927118951/b-9789927118951_006-img34.gif
IMAGE 6.34
The interior courtyard, showing stone semicircular arches on the ground floor and the first-floor gallery with wrought-iron parapet
/content/figure/9789927118951.b_9789927118951-ch06.b-9789927118951_006-fig6.55
FIGURE 6.55
Plans and elevations
9789927118951/b-9789927118951_006-fig55_thmb.gif
9789927118951/b-9789927118951_006-fig55.gif
FIGURE 6.55
Plans and elevations
/content/figure/9789927118951.b_9789927118951-ch06.b-9789927118951_006-fig6.56
FIGURE 6.56
Plans and elevations
9789927118951/b-9789927118951_006-fig56_thmb.gif
9789927118951/b-9789927118951_006-fig56.gif
FIGURE 6.56
Plans and elevations
/content/figure/9789927118951.b_9789927118951-ch06.b-9789927118951_006-fig6.57
FIGURE 6.57
Quriyat Fort: 3D projection
9789927118951/b-9789927118951_006-fig57_thmb.gif
9789927118951/b-9789927118951_006-fig57.gif
FIGURE 6.57
Quriyat Fort: 3D projection
/content/figure/9789927118951.b_9789927118951-ch06.b-9789927118951_006-img6.35
IMAGE 6.35
Main entrance to Quriyat Fort
9789927118951/b-9789927118951_006-img35_thmb.gif
9789927118951/b-9789927118951_006-img35.gif
IMAGE 6.35
Main entrance to Quriyat Fort
/content/figure/9789927118951.b_9789927118951-ch06.b-9789927118951_006-img6.36
IMAGE 6.36
View of the battlements
9789927118951/b-9789927118951_006-img36_thmb.gif
9789927118951/b-9789927118951_006-img36.gif
IMAGE 6.36
View of the battlements
/content/figure/9789927118951.b_9789927118951-ch06.b-9789927118951_006-img6.37
IMAGE 6.37
A corridor in Quriyat Fort
9789927118951/b-9789927118951_006-img37_thmb.gif
9789927118951/b-9789927118951_006-img37.gif
IMAGE 6.37
A corridor in Quriyat Fort
/content/figure/9789927118951.b_9789927118951-ch06.b-9789927118951_006-fig6.58
FIGURE 6.58
Configuration analysis
9789927118951/b-9789927118951_006-fig58_thmb.gif
9789927118951/b-9789927118951_006-fig58.gif
FIGURE 6.58
Configuration analysis
/content/figure/9789927118951.b_9789927118951-ch06.b-9789927118951_006-fig6.59
FIGURE 6.59
Visibility Graph
9789927118951/b-9789927118951_006-fig59_thmb.gif
9789927118951/b-9789927118951_006-fig59.gif
FIGURE 6.59
Visibility Graph
/content/figure/9789927118951.b_9789927118951-ch06.b-9789927118951_006-fig6.60
FIGURE 6.60
Justified Permeability Graph
9789927118951/b-9789927118951_006-fig60_thmb.gif
9789927118951/b-9789927118951_006-fig60.gif
FIGURE 6.60
Justified Permeability Graph
/content/figure/9789927118951.b_9789927118951-ch06.b-9789927118951_006-fig6.61
FIGURE 6.61
Shading analysis
9789927118951/b-9789927118951_006-fig61_thmb.gif
9789927118951/b-9789927118951_006-fig61.gif
FIGURE 6.61
Shading analysis
Tables
Table 1
Public health measures, 1950
-
From This Site
/content/chapter/9789927118951.b_9789927118951-ch06dcterms_subject,pub_keyword-contentType:Journal -contentType:Figure -contentType:Table -contentType:SupplementaryData105
/content/chapter/9789927118951.b_9789927118951-ch06
dcterms_subject,pub_keyword
-contentType:Journal -contentType:Figure -contentType:Table -contentType:SupplementaryData
10
5
Chapter
content/book/9789927118951
Book
true
en